2021年大規模リニューアル!
幅広い用途に対応する多目的ホール!
会場を検討リストに追加いただくことで、会場の比較と一括問い合わせが可能です
料金情報
| 1時間当たりの料金目安 (税込) | 200,000円 円 ~ (1hの目安)(税込) 最低利用時間:5時間から承ります |
|---|---|
| 決済方法 |
使用契約締結後、請求書を発行いたしますので15日以内に予約金(会場利用料)を銀行振込みにてお支払いただきます。 残金は、催事終了後に請求書を発行いたしますので15日以内に銀行振込みをお願いいたします。 |
| キャンセルについて | 【日本橋三井ホールキャンセル規定】 利用開始日より61日前まで利用料の50% 60日前から31日前まで利用料の75% 30日以内、利用料の全額 【橋楽亭キャンセル規定】 利用開始日より61日前まで利用料の25% 60日前から15日前まで利用料の50% 14日以内、利用料の全額 |
日本橋三井ホールとは?
高級感あふれるホテルのようなエントランス、中央通りを眺める華やか且つ上品なホワイエ。 展示会やセミナーなどのビジネスユースに活用できる、ジャパニーズモダンな多目的ホール。 流行に敏感で、物の本質を見極める力を持つお客様に本当の意味での、「上質」を提供いたします。
会場情報
| 面積 | 704㎡ |
|---|---|
| 天井高 | 7m |
|
様式別収容人数 (キャパシティ) |
|
| 会場利用可能時間 (営業時間) |
24時間利用可能です
|
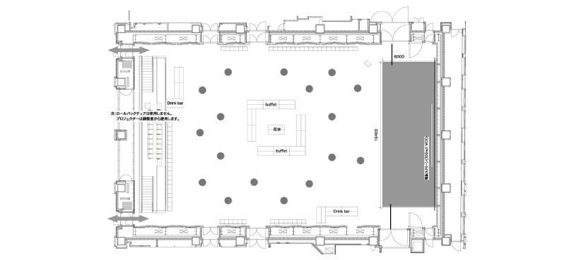
| おすすめ用途 | セミナー・講演会・研修会・会社説明会・展示会・パーティなどに御利用いただけます。 |
| 会場ホームページ | http://www.nihonbashi-hall.jp/overview/5th-floor.html |
| 会場受付担当 | 予約担当者 |
備品・設備
設備情報
- 無線LAN
- 有線LAN
- 専有回線
- テレビ会議設備
- 音響設備
- キッチン設備
- ミラ-
- シャワー
- 更衣室
- 飲食物持ち込み可
- 荷物預かり
- ホワイエ(待合スペース)
- 控室付き
- 喫煙可
- 1時間から利用可
- 深夜・早朝利用可
- 設営、片付けサービス
- 備品無料
- Web予約可
こだわり条件
- ハイエンド
- リーズナブル
- デザイン重視
- 窓あり
- 眺望がいい
- 宴会OK
- 大音量OK
- 楽器演奏OK
- ケータリングサービス
- バリアフリー

















