舞台を備えた大ホール!音響・プロジェクター設備利用可能!
会場を検討リストに追加いただくことで、会場の比較と一括問い合わせが可能です
料金情報
| 1時間当たりの料金目安 (税込) | 3,300円 円 ~ (1hの目安)(税込) 最低利用時間:2時間から承ります。 |
|---|---|
| 決済方法 |
原則、事前払いでのお支払いをお願いしております。 弊社より請求書を送付いたしますので、記載のある指定口座にご入金ください。 |
| キャンセルについて | キャンセルのご連絡を頂いた日からご利用日までの日数に応じてキャンセル料が発生致します。詳しくは弊社スタッフまでお問い合わせ下さい。 |
7階Aホールとは?
舞台を備えた大ホールになります。音響・プロジェクター設備もご利用できるので、講演会やセミナーに最適です。 また飲食もできますので、懇親会や宴会にもご利用できます。
会場情報
| 面積 | 117.34㎡ |
|---|---|
| 天井高 | 3.4m |
|
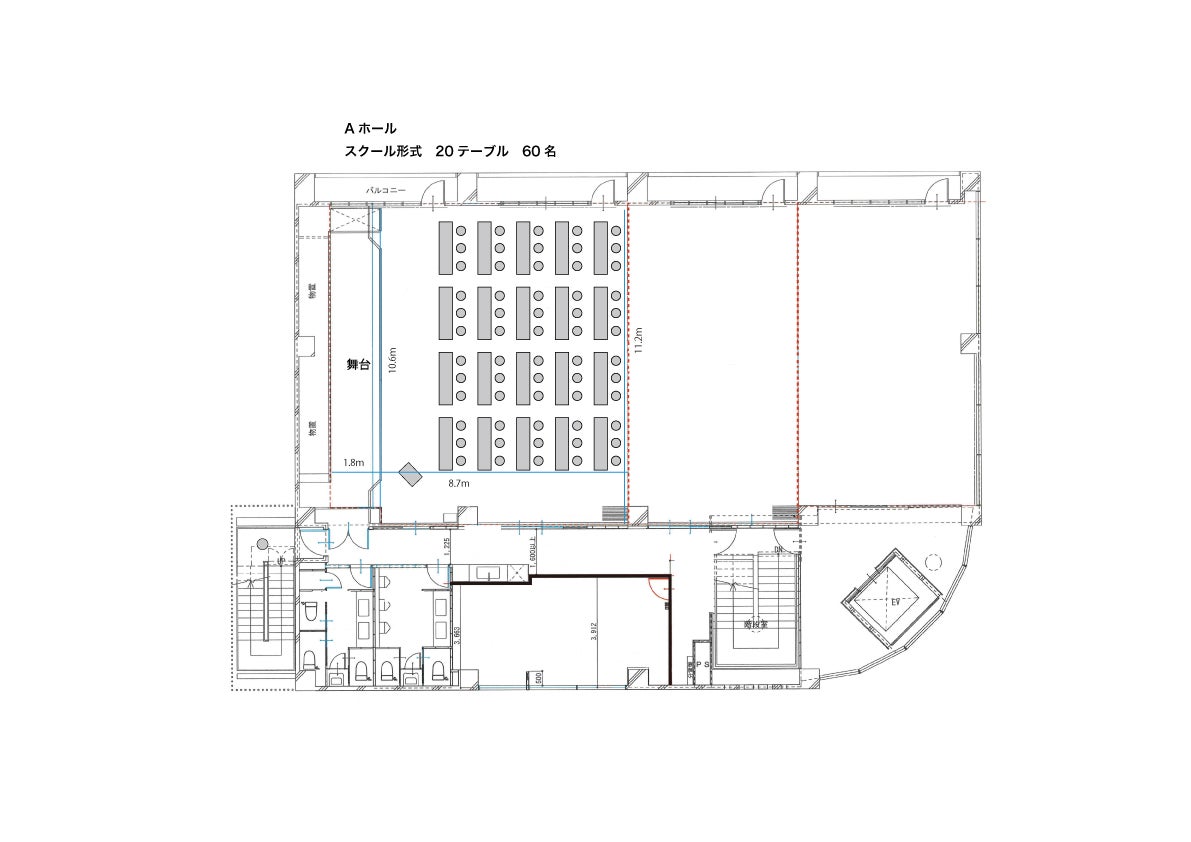
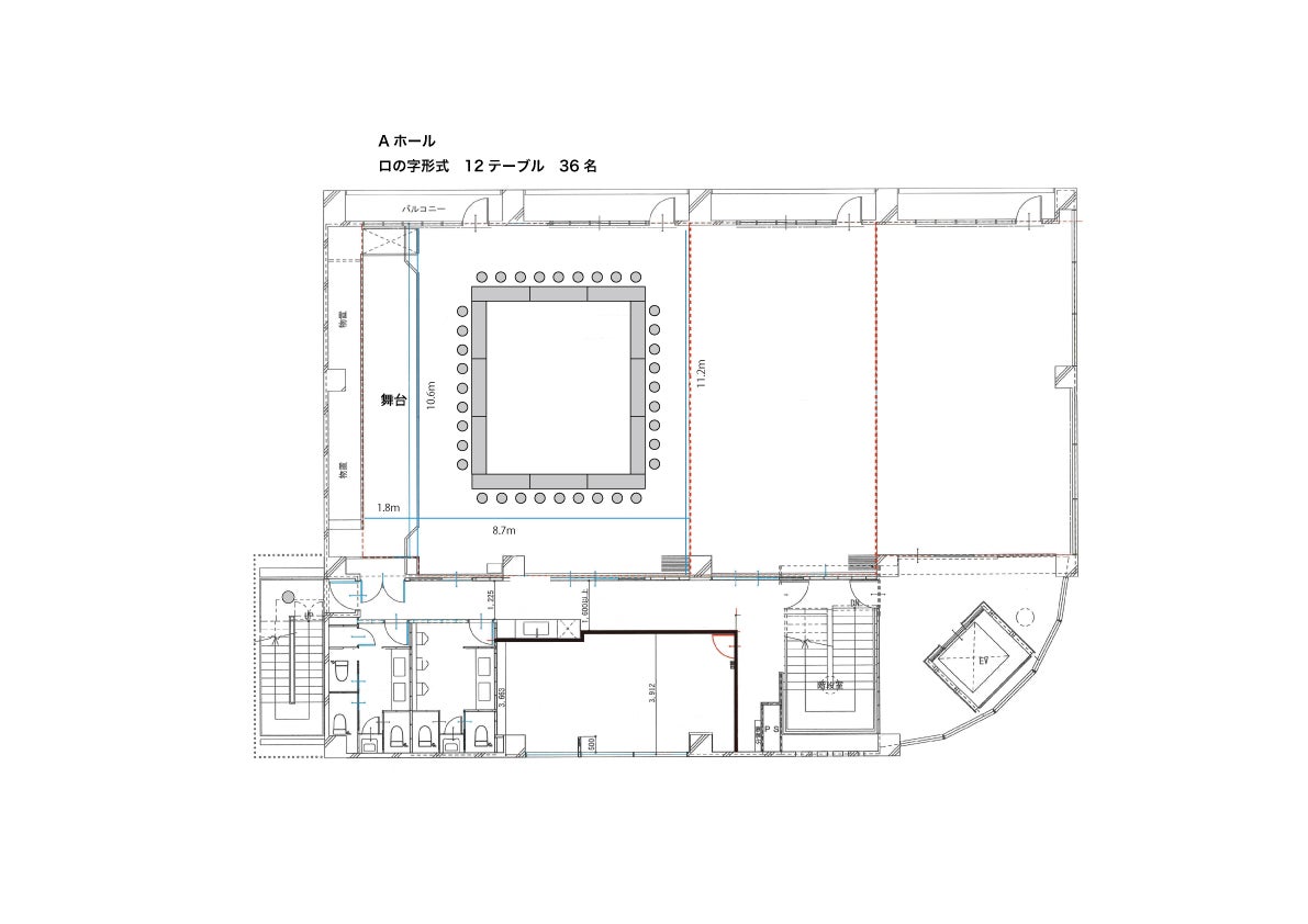
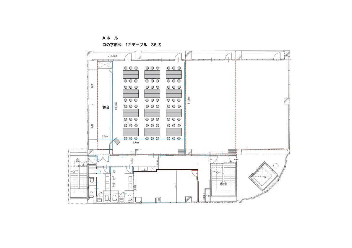
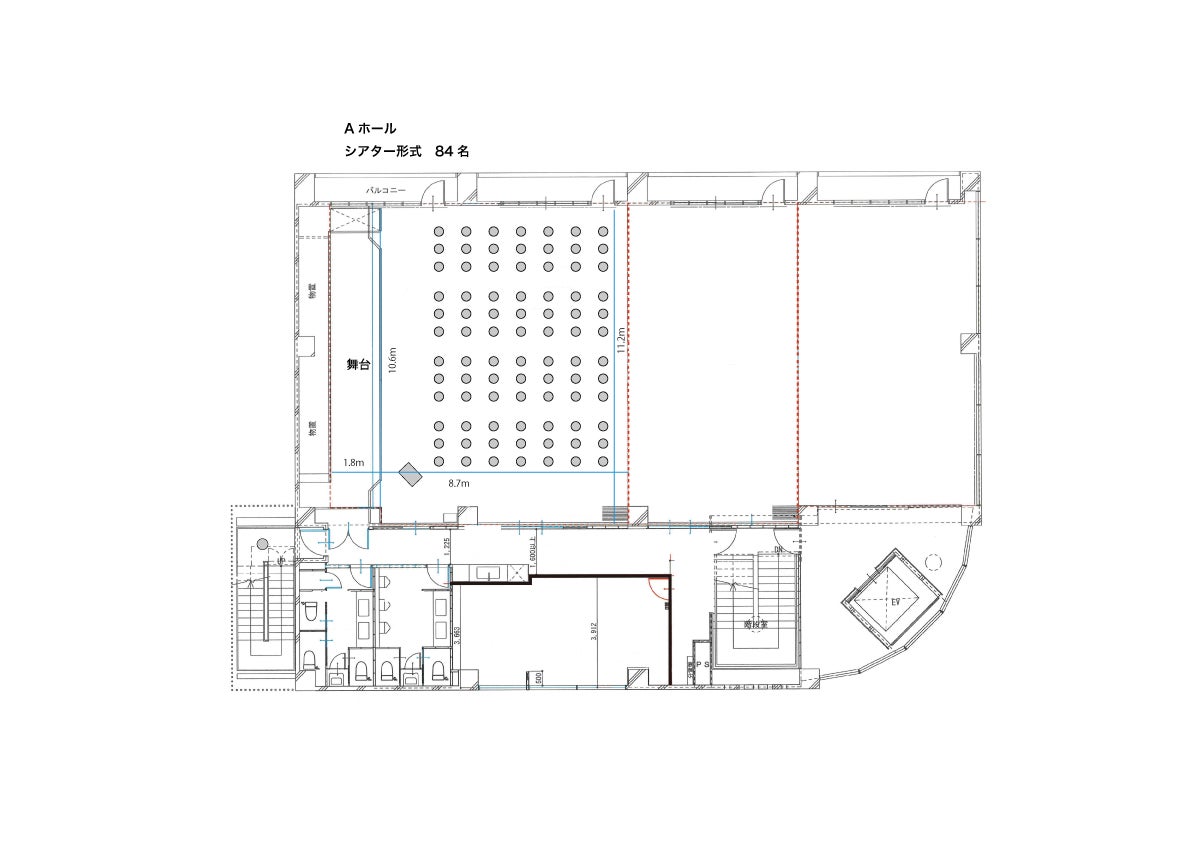
様式別収容人数 (キャパシティ) |
|
| 会場利用可能時間 (営業時間) |
|
| おすすめ用途 | 会議、セミナー、懇親会 |
| 会場受付担当 | 会議室予約担当者 |
備品・設備
設備情報
- 無線LAN
- 有線LAN
- 専有回線
- テレビ会議設備
- 音響設備
- キッチン設備
- ミラ-
- シャワー
- 更衣室
- 飲食物持ち込み可
- 荷物預かり
- ホワイエ(待合スペース)
- 控室付き
- 喫煙可
- 1時間から利用可
- 深夜・早朝利用可
- 設営、片付けサービス
- 備品無料
- Web予約可
備品情報
| ホワイトボード | 1,000円 |
|---|---|
| マイク設備一式 | 1,000円 |
| スクリーン | 1,000円 |
| プロジェクター | 1,000円 |
こだわり条件
- ハイエンド
- リーズナブル
- デザイン重視
- 窓あり
- 眺望がいい
- 宴会OK
- 大音量OK
- 楽器演奏OK
- ケータリングサービス
- バリアフリー







