中規模の会合、総会、打合せ等に適した中会議室
会場を検討リストに追加いただくことで、会場の比較と一括問い合わせが可能です
料金情報
| 1時間当たりの料金目安 (税込) | 17,050円 円 (1hの目安)(税込) 最低利用時間:2時間から承ります。それ以降は1時間単位です。 |
|---|---|
| 決済方法 |
ご使用後、2週間程度でご登録いただいたアドレスへ送付いたします。 |
| キャンセルについて | 使用日4日前から前日 会議室使用料(消費税込)の50% 使用日当日 会議室使用料(消費税込)の100% なお、キャンセルは申込と同様に「スマート空間予約」で可能です。 |
501会議室とは?
中規模の会合、総会、打合せ等に適しております。 プロジェクター・スクリーンを設置できます。(マイク使用不可の会議室です) ガラス壁から赤坂御苑の緑、国立競技場の眺望が広く映え、自然光が入り解放感があります。
会場情報
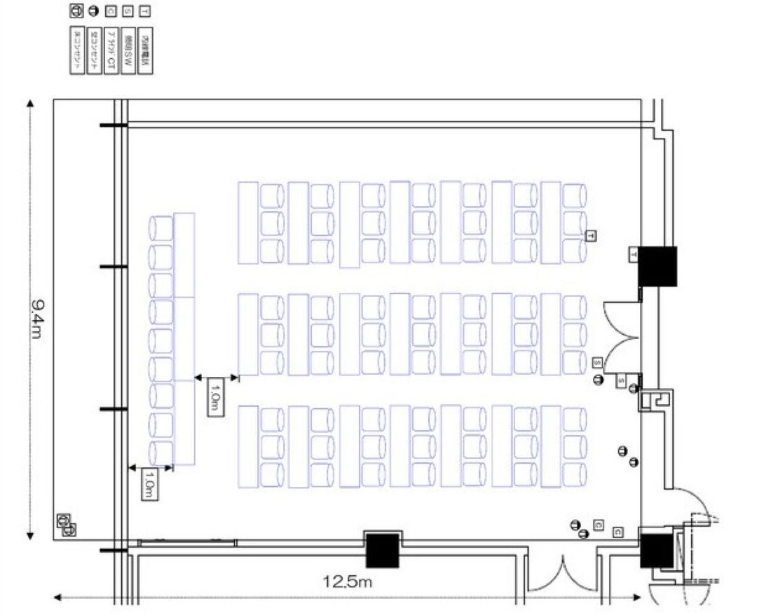
| 面積 | 120㎡ |
|---|---|
| 天井高 | 2.7m |
|
様式別収容人数 (キャパシティ) |
|
| 会場利用可能時間 (営業時間) |
9時から21時まで。17時から21時の時間帯は夜間料金となります。
|
備品・設備
設備情報
- 無線LAN
- 有線LAN
- 専有回線
- テレビ会議設備
- 音響設備
- キッチン設備
- ミラ-
- シャワー
- 更衣室
- 飲食物持ち込み可
- 荷物預かり
- ホワイエ(待合スペース)
- 控室付き
- 喫煙可
- 1時間から利用可
- 深夜・早朝利用可
- 設営、片付けサービス
- 備品無料
- Web予約可
こだわり条件
- ハイエンド
- リーズナブル
- デザイン重視
- 窓あり
- 眺望がいい
- 宴会OK
- 大音量OK
- 楽器演奏OK
- ケータリングサービス
- バリアフリー


