ホテルクライトン新大阪
会場
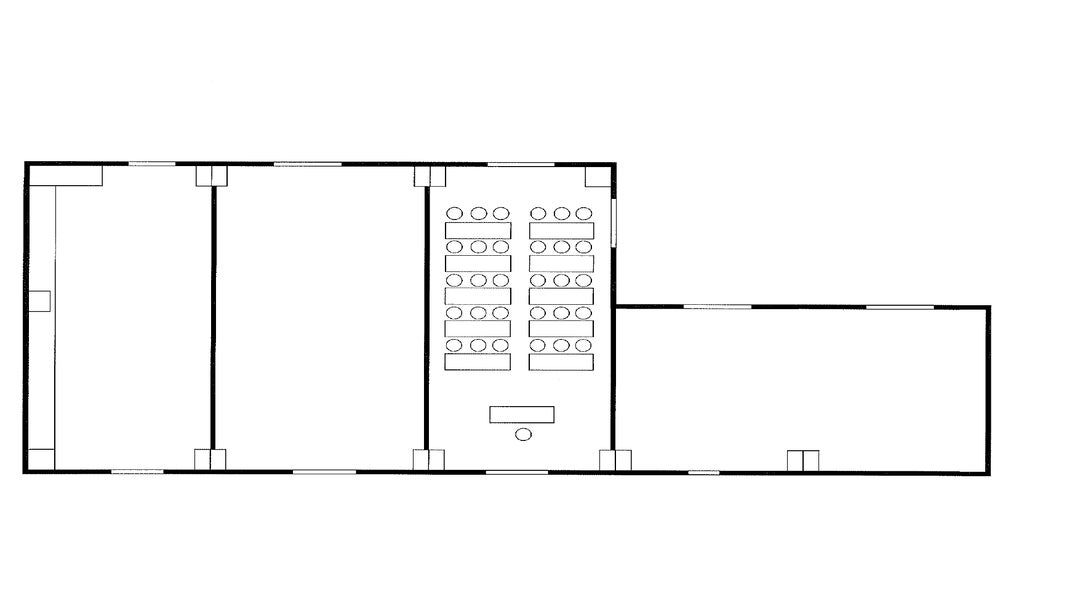
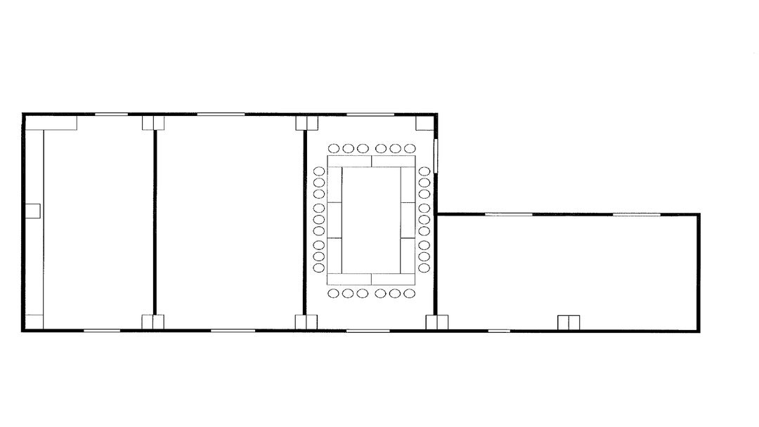
飛鳥
会場を検討リストに追加いただくことで、
会場の比較と一括問い合わせが可能です
会場の比較と一括問い合わせが可能です
ホテル2階の静かな環境にあり、コンパクトで明るいスペースです。
会場を検討リストに追加いただくことで、会場の比較と一括問い合わせが可能です
料金情報
| 1時間当たりの料金目安 (税込) | 7,700円 円 (1hの目安)(税込) 最低利用時間:3時間から承ります。 |
|---|---|
| 決済方法 |
|
| キャンセルについて | ご予約をキャンセルされる場合は、所定のキャンセル料を申し受けます。 60日~30日まで・・・30% 29日~4日まで・・・50% 3日~前日まで・・・80% 当日・連絡なし 100% ・当日、キャンセルのご連絡がなく会議室を利用しなかった場合も、100%のキャンセル料を申し受けます。 |
飛鳥とは?
スクール形式で最大30名ご利用可能な会議室です。 【会場の無料備品】 演台、司会台、マイク、ホワイトボード、ハンガーラック、(全室Wi-Fi対応)
会場情報
| 面積 | 66㎡ |
|---|---|
| 天井高 | 2.6m |
|
様式別収容人数 (キャパシティ) |
|
| 会場利用可能時間 (営業時間) |
|
備品・設備
設備情報
- 無線LAN
- 有線LAN
- 専有回線
- テレビ会議設備
- 音響設備
- キッチン設備
- ミラ-
- シャワー
- 更衣室
- 飲食物持ち込み可
- 荷物預かり
- ホワイエ(待合スペース)
- 控室付き
- 喫煙可
- 1時間から利用可
- 深夜・早朝利用可
- 設営、片付けサービス
- 備品無料
- Web予約可
備品情報
| スクリーン(180×180cm) 自立式 | 3,300円 |
|---|---|
| プロジェクター | 5,500円 |
こだわり条件
- ハイエンド
- リーズナブル
- デザイン重視
- 窓あり
- 眺望がいい
- 宴会OK
- 大音量OK
- 楽器演奏OK
- ケータリングサービス
- バリアフリー



