大阪YMCA国際文化センター 大ホール&会議室
会場
 
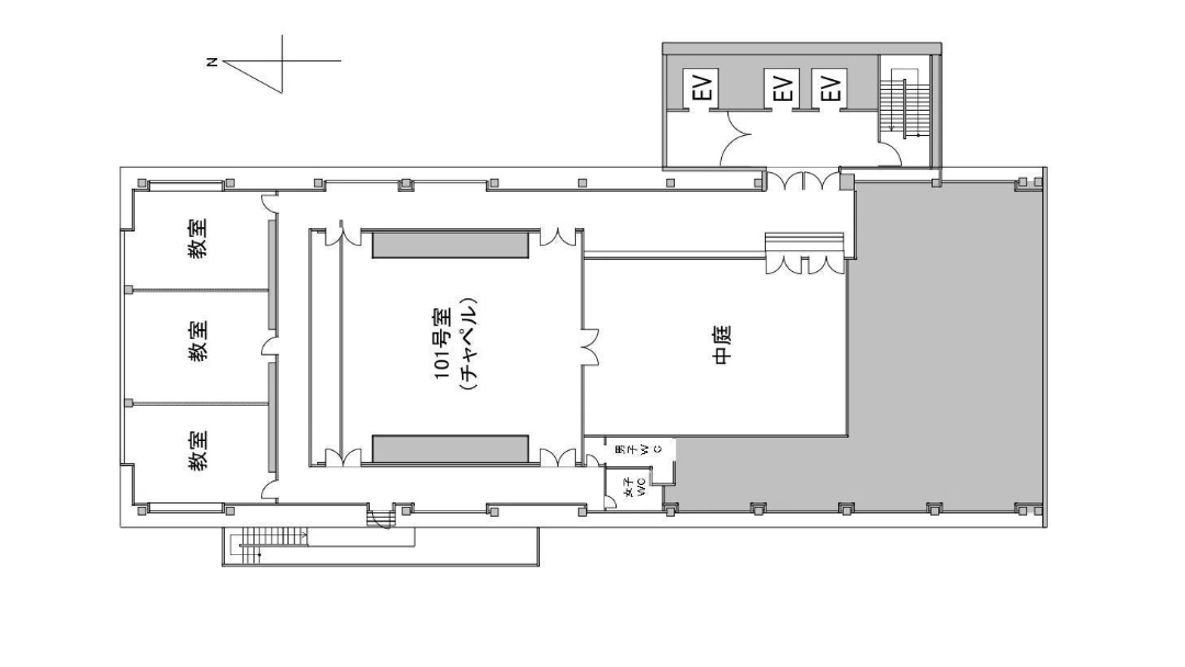
                小ホール(101号室130㎡/96人収容可能:チャペルタイプ)
            
                    会場を検討リストに追加いただくことで、
会場の比較と一括問い合わせが可能です
会場の比較と一括問い合わせが可能です
    天井が高く、開放感のある100名規模ホール。
屋上と隣接し、開放感があります。
 会場を検討リストに追加いただくことで、会場の比較と一括問い合わせが可能です
料金情報
| 1時間当たりの料金目安 (税込) | 8,230円 円 ~ 13,940円 円 (1hの目安)(税込) 最低利用時間:3時間から承ります | 
|---|---|
| 決済方法 | 
 | 
| キャンセルについて | ホールは6ヶ月前から、会議室は3ヶ月前からキャンセル料を申し受けます。 但し、年度内への日程変更を一度に限り無料で申し受けます(年度:4月~翌年3月)。 | 
小ホール(101号室130㎡/96人収容可能:チャペルタイプ)とは?
パーティ・懇親会や会議・展示会など様々な用途に対応可能です。 館内インターネットも充実で、TV会議、配信機材もご用意できます。 ホール横には控室完備。ホール前には専用ロビー・受付がございます。 立地は靱公園から北側の土佐堀エリアなので、福島・梅田・本町エリアからのアクセスも便利です。まずはお気軽にご相談ください。
会場情報
| 面積 | 130㎡ | 
|---|---|
| 天井高 | 4.7m | 
| 様式別収容人数 (キャパシティ) | 
 
 
 
 
 
 
 
 | 
| 会場利用可能時間 (営業時間) | 
 
 
 
 
 
 
 
                    平日・土・日・祝 8:00~9:00(別途有料)もご利用いただけます。
お気軽にご相談ください。
                 | 
| おすすめ用途 | 会議・セミナー・研修・懇親会・会社説明会など | 
| 会場ホームページ | https://osakaymca.or.jp/shisetsu/bunka-center/ | 
| 会場受付担当 | 国際文化センター担当者 | 
備品・設備
設備情報
- 無線LAN
- 有線LAN
- 専有回線
- テレビ会議設備
- 音響設備
- キッチン設備
- ミラ-
- シャワー
- 更衣室
- 飲食物持ち込み可
- 荷物預かり
- ホワイエ(待合スペース)
- 控室付き
- 喫煙可
- 1時間から利用可
- 深夜・早朝利用可
- 設営、片付けサービス
- 備品無料
- Web予約可
備品情報
| マイク(ワイヤレスピン・ワイヤレスハンド) | 2,200円 
                        マイクスタンド(卓上、ロング)は無料
                     | 
|---|---|
| マイク(有線) | 2,200円 
                        マイクスタンド(卓上、ロング)は無料
                     | 
| CDデッキ | 2,200円 | 
| マルチメディアプロジェクター(3500ルーメン) | 30,800円 
                        10mPCケーブル1本付属(HDMIケーブルに交換可)
映像入力:D-sub15ピン(ミニ)×2、ビデオ入力×1、HDMI×1
                     | 
| スクリーン(100インチ) | 4,400円 
                        縦1.5m×横2m、ロールアップ式
                     | 
| 持込器具電源使用料 | 440円 
                        プロジェクターなど、電源のっ必要な器具のお持込み時。
(パソコンは不要です。)
                     | 
| 演台・司会台・ホワイトボード1面 | 0円 | 
| レーザーポインター | 2,200円 | 
| 音声出力 | 0円 
                        お持ち込みのノートパソコンなどの音声を会場のスピーカーに接続します。
                     | 
ネットワーク情報
| ネットワーク速度 | 上り 200Mbps 〜 下り 200Mbps / ベストエフォート | 
|---|---|
| 備考 | 館内高速専用回線で帯域を確保しています | 
こだわり条件
- ハイエンド
- リーズナブル
- デザイン重視
- 窓あり
- 眺望がいい
- 宴会OK
- 大音量OK
- 楽器演奏OK
- ケータリングサービス
- バリアフリー

 
 









