TKPガーデンシティPREMIUM仙台西口
会場
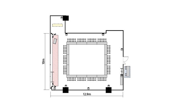
ホール4C
会場を検討リストに追加いただくことで、
会場の比較と一括問い合わせが可能です
会場の比較と一括問い合わせが可能です
会場を検討リストに追加いただくことで、会場の比較と一括問い合わせが可能です
料金情報
| 1時間当たりの料金目安 (税込) | お問い合わせください 最低利用時間:3時間から承ります。 |
|---|---|
| 決済方法 |
|
| キャンセルについて | 利用規約・キャンセルポリシー https://www.kashikaigishitsu.net/terms/?ctid=ad_s_kgcom |
ホール4Cとは?
常設備品 ホワイトボード:1 有線マイク:2 演台:1 電源タップ:5
会場情報
| 面積 | 145.83㎡ |
|---|---|
| 天井高 | 2.8m |
|
様式別収容人数 (キャパシティ) |
|
| 会場利用可能時間 (営業時間) |
※下記の時間帯は割増料金が発生いたします。
07:00 ~ 09:00 /21:00 ~ 23:00
※本予約後のキャンセルはキャンセル料金が発生いたします。
※飲食物の持ち込みは原則ご遠慮いただいております。持ち込みをご希望の方は持込清掃料を頂戴する形でご相談を承ります。
|
| おすすめ用途 | 会議、セミナー、懇親会、会社説明会等 |
| 会場ホームページ | https://www.kashikaigishitsu.net/facilitys/gcp-sendai-nishiguchi/room_detail/5706/?ctid=ad_s_kgcom |
備品・設備
設備情報
- 無線LAN
- 有線LAN
- 専有回線
- テレビ会議設備
- 音響設備
- キッチン設備
- ミラ-
- シャワー
- 更衣室
- 飲食物持ち込み可
- 荷物預かり
- ホワイエ(待合スペース)
- 控室付き
- 喫煙可
- 1時間から利用可
- 深夜・早朝利用可
- 設営、片付けサービス
- 備品無料
- Web予約可
こだわり条件
- ハイエンド
- リーズナブル
- デザイン重視
- 窓あり
- 眺望がいい
- 宴会OK
- 大音量OK
- 楽器演奏OK
- ケータリングサービス
- バリアフリー








