TKP新宿西口カンファレンスセンター
会場
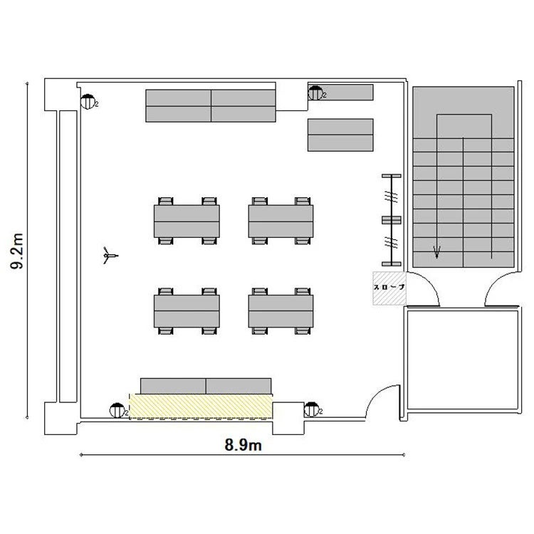
カンファレンスルーム9A
会場を検討リストに追加いただくことで、
会場の比較と一括問い合わせが可能です
会場の比較と一括問い合わせが可能です
会場を検討リストに追加いただくことで、会場の比較と一括問い合わせが可能です
料金情報
| 1時間当たりの料金目安 (税込) | お問い合わせください 最低利用時間:3時間から承ります。 |
|---|---|
| 決済方法 |
|
| キャンセルについて | 利用規約・キャンセルポリシー https://www.kashikaigishitsu.net/terms/?ctid=ad_s_kgcom |
カンファレンスルーム9Aとは?
常設備品 ホワイトボード:1 演台:1 電源タップ:3
会場情報
| 面積 | 83㎡ |
|---|---|
| 天井高 | 2.5m |
|
様式別収容人数 (キャパシティ) |
|
| 会場利用可能時間 (営業時間) |
下記の時間帯は割増料金が発生いたします。
07:00 ~ 08:00 50%
08:00 ~ 09:00 30%
21:00 ~ 22:00 30%
22:00 ~ 23:00 50%
※ミーティングルームは2時間から、カンファレンスルーム・バンケットルームは3時間から、ホール・バンケットホールは5時間からご予約を承ります。
※ご利用時間には、準備・ご入室・ご退室を含みます。時間外のご利用は延長料金が発生致します。
※ご利用料金等は予告なく変更させていただく場合がございますので、あらかじめご了承ください。
※ご利用方法・ご利用内容によっては通常料金とは別途割増料金が発生する場合がございます。あらかじめご了承ください。
※プロジェクターを設置する場合は表記の最大定員を収容できない場合がございます。
※オプションサービス・備品のお申し込み、レイアウトを変更される場合は、ご利用日の3営業日前までにご連絡ください。
※飲食物の持込みは原則ご遠慮いただいております。持込みご希望の方は、別途持込料及び清掃料を頂戴する形でご相談を承ります。
|
| おすすめ用途 | 会議、セミナー、懇親会、会社説明会 |
| 会場ホームページ | https://www.kashikaigishitsu.net/facilitys/cc-shinjuku-nishiguchi/room_detail/4876/?ctid=ad_s_kgcom |
備品・設備
設備情報
- 無線LAN
- 有線LAN
- 専有回線
- テレビ会議設備
- 音響設備
- キッチン設備
- ミラ-
- シャワー
- 更衣室
- 飲食物持ち込み可
- 荷物預かり
- ホワイエ(待合スペース)
- 控室付き
- 喫煙可
- 1時間から利用可
- 深夜・早朝利用可
- 設営、片付けサービス
- 備品無料
- Web予約可
こだわり条件
- ハイエンド
- リーズナブル
- デザイン重視
- 窓あり
- 眺望がいい
- 宴会OK
- 大音量OK
- 楽器演奏OK
- ケータリングサービス
- バリアフリー








