TKPガーデンシティPREMIUM横浜駅新高島
会場
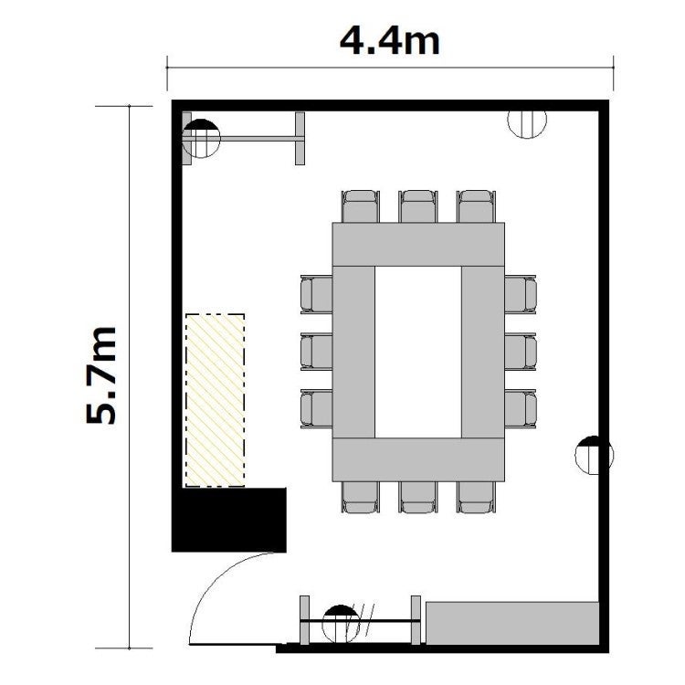
ミーティングルーム2G
会場を検討リストに追加いただくことで、
会場の比較と一括問い合わせが可能です
会場の比較と一括問い合わせが可能です
会場を検討リストに追加いただくことで、会場の比較と一括問い合わせが可能です
料金情報
| 1時間当たりの料金目安 (税込) | お問い合わせください 最低利用時間:2時間から承ります。 |
|---|---|
| 決済方法 |
|
| キャンセルについて | 利用規約・キャンセルポリシー https://www.kashikaigishitsu.net/terms/?ctid=ad_s_kgcom |
ミーティングルーム2Gとは?
常設備品 ホワイトボード:1 電源タップ:2
会場情報
| 面積 | 24㎡ |
|---|---|
| 天井高 | 3.5m |
|
様式別収容人数 (キャパシティ) |
|
| 会場利用可能時間 (営業時間) |
※下記の時間帯は割増料金が発生いたします。
07:00 ~ 08:00 50%
08:00 ~ 09:00 30%
21:00 ~ 22:00 30%
22:00 ~ 23:00 50%
※ご利用料金等は予告なく変更させていただく場合がございますので、あらかじめご了承ください。
※ご利用方法・ご利用内容によっては通常料金とは別途割増料金が発生する場合がございます。
※備品のお申込み・レイアウトを変更される場合は、ご利用日の3営業日前までにご連絡ください。
※飲食物の持込みはご遠慮ください。弊社ケータリングサービスをご利用ください。
※持込みご希望の方は、別途持込料及び清掃料を頂戴する形でご相談を承ります。
※館内のゴミ箱はご利用頂けませんのでご注意ください。
※ミーティングルームは2時間から、カンファレンスルームは3時間から、ホールは5時間から予約を承ります。
※HPに記載のレイアウト(シアターを除く)は無料でご用意いたします。変更をご希望の場合は、お部屋規模に応じた変更料が発生いたします。但し本会場のレイアウトは窓向きスクールに限り、レイアウト変更料の対象外となります。
※ホール2A・2B・2Cに限ります。
|
| おすすめ用途 | 会議、セミナー、懇親会、会社説明会 |
| 会場ホームページ | https://www.kashikaigishitsu.net/facilitys/gcp-yokohama-shintakashima/room_detail/5424/?ctid=ad_s_kgcom |
備品・設備
設備情報
- 無線LAN
- 有線LAN
- 専有回線
- テレビ会議設備
- 音響設備
- キッチン設備
- ミラ-
- シャワー
- 更衣室
- 飲食物持ち込み可
- 荷物預かり
- ホワイエ(待合スペース)
- 控室付き
- 喫煙可
- 1時間から利用可
- 深夜・早朝利用可
- 設営、片付けサービス
- 備品無料
- Web予約可
こだわり条件
- ハイエンド
- リーズナブル
- デザイン重視
- 窓あり
- 眺望がいい
- 宴会OK
- 大音量OK
- 楽器演奏OK
- ケータリングサービス
- バリアフリー







